The Finley Cottage is a spacious 1,922 sq. ft., 2 bedroom and 2 full bath home and like all of our plans, features main level living. The plan features custom cabinets, hardwood floors, granite counters in the kitchen and baths, step-less showers, fireplace and irrigation systems for your lawns. A spacious screened porch for enjoying the outdoors and the all of the natural splendor of 40 acres of protected green-space that The Village on Blackwell Creek has to offer.
If you would like to expand this plan we can design an upper level with one or two bedrooms and full bath if it is built on a slab or it can have a full basement (finished or unfinished). The Finley Cottage like all of our plans comes with elevator space designed into the home so you can easily add an elevator to that upstairs or terrace level during construction or in a few years if desired. The options for this home are endless and we can customize The Finley Cottage to fit your personal needs and desires.
The Floorplan
Slab Foundation, 1,922 sq ft. 2 bedroom 2 bath
Unfinished Terrace Level, 1922 sq. ft., 2 bedroom 2 bath
Finished Terrace Level, 2924 sq. ft., 4 bedroom 4 bath
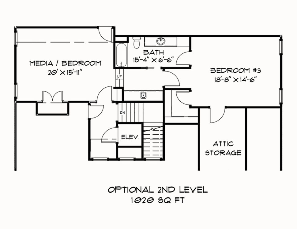
2nd Story Option, 1,050 sq. ft., 1 bedroom, 1 bath, media room,
New Home Design Features
- Oven, cooktop, vent hood and dishwasher – Kitchen Aid
- Delta single handle faucet with vegetable sprayer
- Moen stainless sink – under mount
- Insinkerator Bager -5 disposal
- Cabinets – Custom or Aristrokraft**
- Granite counter tops with ceramic tile backsplash
- Ice make connection
- Oversized shower with ceramic tile and not curb entryDelta plumbing fixtures in all baths
- Delta plumbing fixtures in all bathsUnder mount sinks
- Under mount sinksWater closet with comfort height, elongated toilet
- Water closet with comfort height, elongated toiletCeramic tile flooring
- Ceramic tile flooringCabinets – Custom or Aristrokraft**
- Cabinets – Custom or Aristrokraft**Granite counter tops – convenience height – 36 inches
- Granite counter tops – convenience height – 36 inches42 inch vanity mirrors
- 42 inch vanity mirrors
- Frameless glass shower entry
- Optional radiant floor heating
- Ceramic tile with soap nicheKoehler drop-in whirlpool tub*
- Koehler drop-in whirlpool tub*Under mount sinks
- Under mount sinksWater closet with comfort height, elongated toilet
- Water closet with comfort height, elongated toiletCeramic tile flooring
- Ceramic tile flooringCabinets – Custom or Aristrokraft**
- Cabinets – Custom or Aristrokraft**Granite counter tops – convenience height – 36 inches
- Granite counter tops – convenience height – 36 inches42 inch vanity mirrors
- 42 inch vanity mirrors
- Frameless glass shower entry
- Designer exterior and interior lighting fixturesRecess lighting in kitchen
- Recess lighting in kitchenUnder cabinet lighting in Kitchen
- Under cabinet lighting in KitchenCat5 wiring
- Cat5 wiring 200 amp service
- 200 amp serviceYard and street lighting
- Yard and street lightingDecorative ceiling
- Decorative ceiling pendant lighting over kitchen island
- One year workmanship on entire homeOne year workmanship on mechanical, electrical and plumbing
- One year workmanship on mechanical, electrical and plumbing
- Manufacturers warranty on all alliances
- Carrier 10 year registered parts warranty
PDF Link
Architectural Details and Construction Features
- Mountain home architecture and exterior treatments
- All homes designed by Wayne Bruce Designs, Inc
- Stone and brick accents
- Timber truss accents
- Low maintenance exteriors:
- James Hardie cement siding, shakes, fascia and cornice
- Aluminum gutters with solid topper leaf guard
- Vinyl low-e insulated windows by PlyGem and Pella
- Therma Tru fiberglass insulated exterior doors
- Upgraded 30 year roof shingles by CertainTeed
- Covered porches front and rear with optional Ez Breeze four season upgrade*
- Decorative front porch columns with stone or brick base
- Concrete drive and walks
- 9 ‘ and 10 ‘ ceilings
- Hardwood flooring throughout the Main Level
- Ceramic tile flooring in all bathrooms
- Wall-to-Wall carpet in Bedrooms
- 6’8” & 8 ‘ interior designer doors
- 6 inch base boards
- 4 inch crown molding
- Designer ceiling in Great room
- Smooth drywall ceilings and walls
- Closet shelving by Closet Maid
- Low sloping drives and walks
- Oversize Garages with Golf Cart Garage
- Easy street access
- Golf cart friendly
- Spacious doorways and halls
- Low barrier door threshold and entrances
- Low barrier – curbless Master Showers
- Comfort-height and elongated commodes
- Raised – 36” height bath vanities
- Lever door handles
- Full-size stairs to access attic storage*
- Built in future elevator shaft*
- Digital thermostats
- Owner’s Entry*
- Heating & Cooling by Carrier
- Upgraded waterproofing by BarriCoat-S
- Stained concrete front and rear porch floors*
- R-13 insulation in all exterior walls
- R-38 ceiling insulation over living areas
- R-11 sound insulation on interior privacy walls
- Optional Spray Foam Insulation packages available
- Gas (LP) supply in fireplace, water heater and cooktop
- Tankless Gas water heater by Rinnai
- Automatic garage door openers with remote transmitters
- Cat5 wiring for telephone and internet access
- Optional Wi-fi Smart thermostats
- Optional Keyless entrance smart locks
PDF Link


